Architecture Project

Vijay Sales (Under Construction)
Gurugram, India
Client Names: M/S VIJAY SALES Pvt. Ltd.
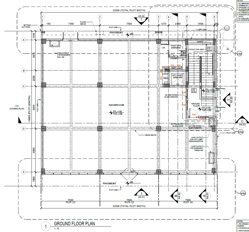
Site Area: 446 Sqm
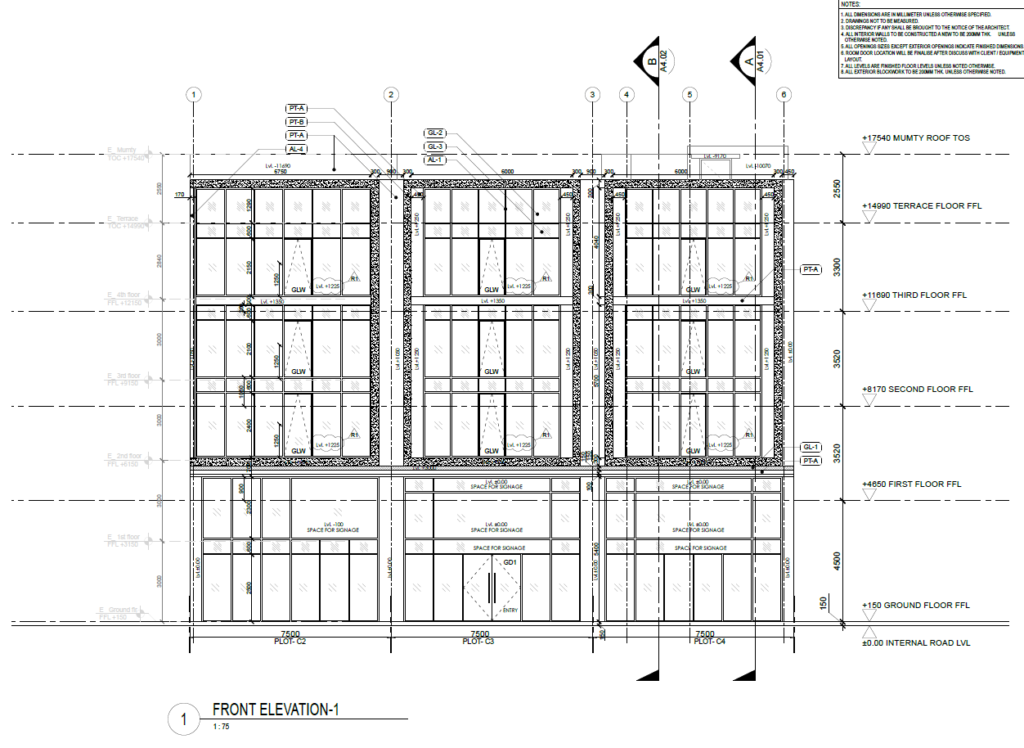
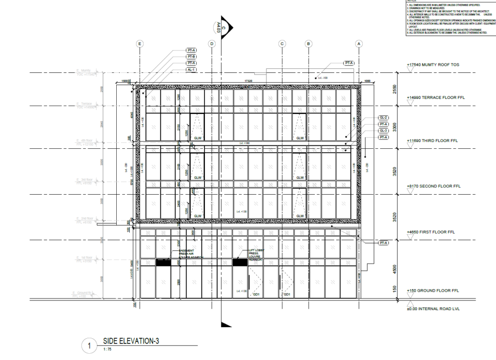
- The Vijay Sales located in Gurugram.
- This project is planned on a 446 sqm site.
- SBA scope of work was full design Services.






